Mosemann Design Studio

SoftwareWebsitesArchitectureContact

Spring Road House

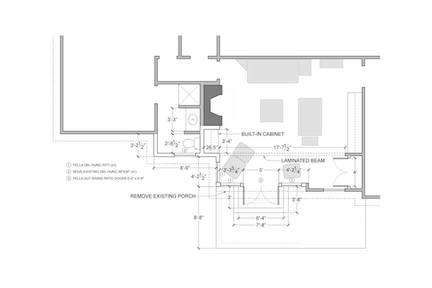
An unused porch was transformed into a spacious living area and expanded bath for family gatherings and accessibility.

To create a more accommodating space for gatherings with their growing family, a retired couple expanded their living room, utilizing an unused front porch (with primary access from the rear). By extending the living area six feet, the addition integrates seamlessly with the home’s existing architecture, featuring white trim that echoes the adjacent screened porch between the main house and garage, bringing visual harmony to the exterior. A small patio, positioned to capture serene morning light, completes the space. Adjacent to the new living area, an expanded master bathroom enhances accessibility and includes a spacious walk-in shower, adding both function and comfort to the home.

Finishes and furnishings selected by the homeowner.

Located in Fulton County, Pennsylvania

Completed in 2018

Spring Rd House Exterior 1,
Spring Road House Exterior 2,

Interior view of expanded living room.

Spring Rd House Interior 1,
Spring Road House Interior 2,

Expanded master bathroom enhances accessibility and includes a spacious walk-in shower.

Spring Road House Master Bath,

Elevation

Spring Rd House - Front, undefined

Floor plan

Spring Rd House - Plan, undefined